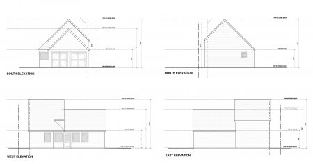
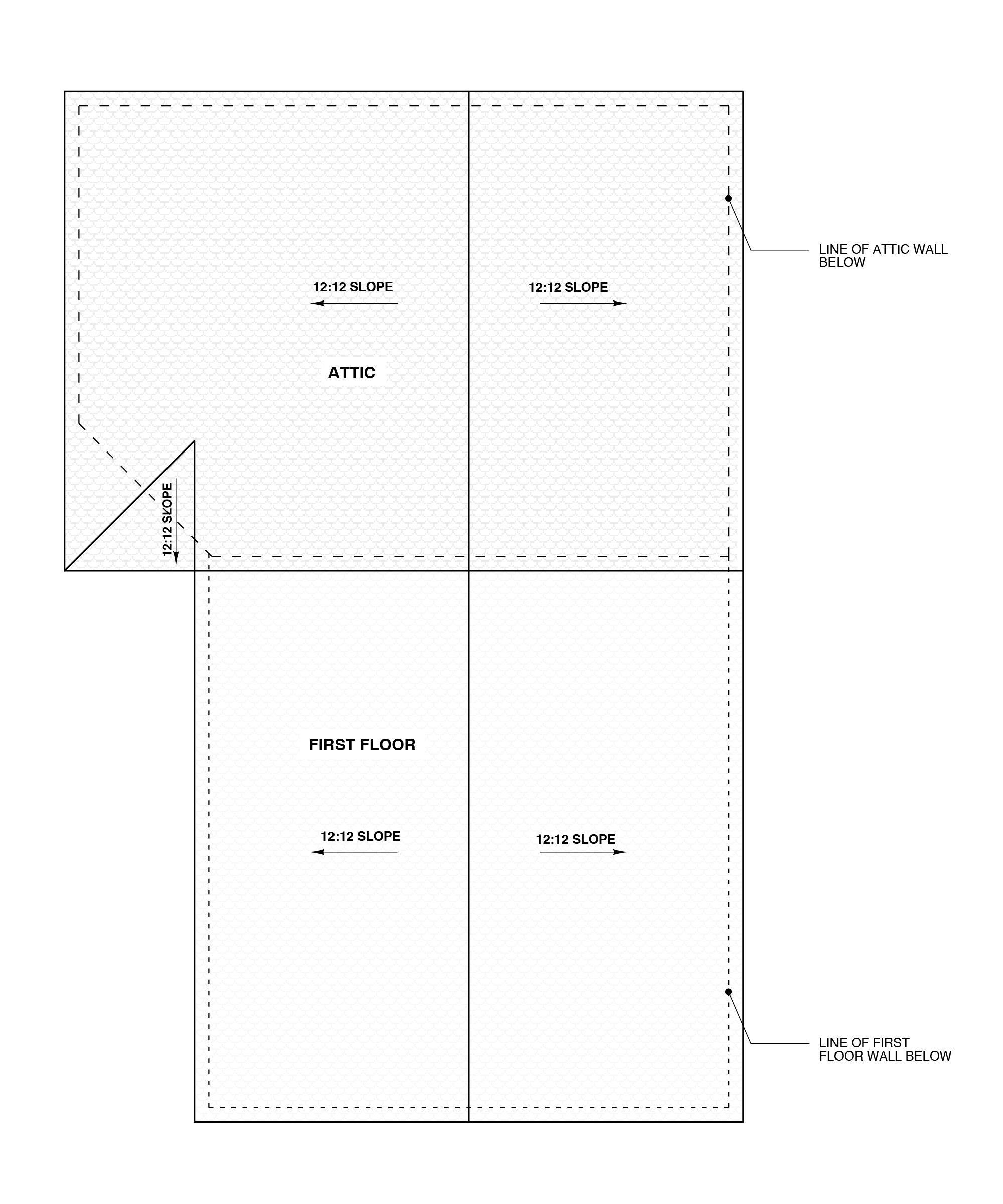
meanwhile Posted October 22, 2025 Share Posted October 22, 2025 Hello! I'm trying to model out the ceilings and roof of this building, but I'm a bit stumped on a few things. I think there are three problems I'm trying to solve: The attic saltbox roof (see Section B and North Elevation) – I've read this guide, but it doesn't seem to explain the wall-less side of the room (where the floor and roof converge). And when I try to change the opposite wall to a knee wall type, HD throws an error/warning. The vaulted living room ceiling (Section A) – it's not as simple as unchecking Flat Ceiling Over this Room, because there is a flat section, just further up. I can't quite figure out how to create that. The small corner overhang / roof extension that you can see in the West elevation and Top view. Any help with even one of these would be greatly appreciated. Thanks! Link to comment Share on other sites More sharing options...
y-g-m-n Posted October 23, 2025 Share Posted October 23, 2025 well for #2 add a ceiling plane where the flat section is... Do you have 3d views/pictures of this house? I do not understand what it is supposed to look like as #3 does not make sense nor why would you do that. Link to comment Share on other sites More sharing options...
meanwhile Posted October 27, 2025 Author Share Posted October 27, 2025 D'oh, ceiling plane added, thank you. Yeah, #3 is a weird one. This was formerly a little home theater – I believe the roof was built that way to accommodate a marquee display. I've been going at this for days now trying to figure it out, and I nearly have it. I think I actually do have it according to the architectural drawings, but they're not fully accurate – I just need to figure out how to raise up the northwest side / half of the building by several inches. It's weird, because the inside walls on the first floor there are 8' 4" high, but right outside on the other side, it reaches 9' where the hip of the gable starts. Can anyone help me? Link to comment Share on other sites More sharing options...
meanwhile Posted October 28, 2025 Author Share Posted October 28, 2025 Banging my head against a wall over here with this building structure. Now I'm having this problem with a weird gap where the vaulted ceiling doesn't meet the upper wall. This doesn't seem to be a very active forum – is there another place I can get some hands on help with this model? Link to comment Share on other sites More sharing options...
Jo_Ann Posted October 29, 2025 Share Posted October 29, 2025 I hear you complaining about getting help, but your description of the problem, (and the posted image) do not offer much for anyone to have an opinion about what needs to be done. 1 Link to comment Share on other sites More sharing options...
meanwhile Posted October 29, 2025 Author Share Posted October 29, 2025 4 hours ago, Jo_Ann said: I hear you complaining about getting help, but your description of the problem, (and the posted image) do not offer much for anyone to have an opinion about what needs to be done. I hear you leaving a rude comment, but your description of my questions do not offer me anything to learn how to better explain this. I've provided as much info and photos that I possibly could think would be relevant to figuring out how to solve the latest problem, which I'll reiterate again: how to raise the outer roof on just one section of the building (without causing strange ceiling and roof glitches), when the interior and exterior ceilings of the same wall are somehow different heights in real life. Or if it's too complicated for a simple solution provided on a forum, that's why I asked about a potential alternative way to get help. I didn't see any clear information about that from the support resources. Why not just tell me the information I'm leaving out to be able to answer my question instead of leaving a rude comment? I'm not trying to attack you back, I mean that frankly: there's enough negative energy in the world already, and there are more productive ways of communicating online. Link to comment Share on other sites More sharing options...
y-g-m-n Posted October 29, 2025 Share Posted October 29, 2025 how did you make vaulted ceiling with ceiling plane? Then drag its edge over the wall studs as sheetrock is automatic no matter how you do anything. PS if you need help you can google it and there are peeps out there who charge for their help services with this software Link to comment Share on other sites More sharing options...
Recommended Posts
Please sign in to comment
You will be able to leave a comment after signing in
Sign In Now